- Главная
- Септики Топас
- Топас 5
Канализация Топас 5 в Нижнем Новгороде
Цена на Топас 5
Скидка -10%
|
Топас-С 5 в наличии (1 компрессор) |
150 300 руб. |
|---|---|
| Цена по акции (доставка + монтаж) | 192 300 руб. |
|
Топас 5 в наличии (2 компрессора) |
167 040 руб. |
| Цена по акции (доставка + монтаж) | 209 040 руб. |
- Для 5-и человек
- Объем переработки: 1 м3/сут.
- Залповый сброс: 220 л.
- Вес: 280 кг.
- Длина: 1.1 м
- Ширина: 1.2 м
- Высота: 2.5 м
- Глубина залегания: 90 см
- Потреблeние энергии: 1.5 кВт/сут
Доставка и оплата
- Срок доставки по Нижнему Новгороду – от 1 дня
- Доставка до 30 км от МКАД – бесплатно
- Доставка свыше 30 км от МКАД – 50 руб/км
- Оплата – наличный или безналичный расчет
Информация по монтажу
Описание Топас 5
Септики Топас и Топас-С 5 являются автономными устройствами для переработки стоков частных домов при отсутствии доступа к центральной канализации. Устройство разработано компанией ТОПОЛ-ЭКО, которая уже более 20 лет специализируется на создании очистных сооружений хозяйственно-бытовых сточных вод. Станция биологической очистки Топас 5 предназначена для 5 пользователей и позволяет перерабатывать до 1 м3 стоков в сутки. Объем единовременного выброса жидкости составляет 220 литров, а энергопотребление станции составляет 1.5 кВт в сутки.
Топас 5 изготовлен из прочного полипропилена, не подверженного коррозии или деформации. Производитель продумал универсальное исполнение, поэтому устанавливать оборудование можно в любой тип грунта, в том числе и при высоком уровне грунтовых вод. Работа оборудования основана на применении современных методов биологической очистки, в результате которой обеспечивается очистка до 98% и на выходе вода не имеет цвета и запаха. Она может безопасно сбрасываться или использоваться в технических целях без вреда для человека и окружающей среды.
Комплектация Топас 5
Внутреннее устройство
Наименование отсеков
- А. Приемная камера
- Б. Аэротенк
- В. Стабилизатор активного ила
- Г. Вторичный отстойник
Устройство очистного сооружения
- Ввод стоков
- Фильтр крупных фракций
- Эрлифт, главный насос
- Эрлифт рециркуляции
- Эрлифт откачки ила
- Эрлифт стабилизированного ила
- Компрессоры - 2 шт. У Топас-С 5 - 1 шт.
- Устройство сбора неперерабатываемых частиц
- Выход очищенной воды
- Фильтр тонкой очистки
- Датчик уровня
- Распаячная коробка для подключения подводящего эл. кабеля
- Кнопка включения и выключения УОСВ
- Блок управления
- Розетки для подключения компрессоров
Преимущества
- степень очистки сточных вод: 98%
- заводская гарантия составляет 3 года
- биологический способ очистки стоков
- отсутствие неприятных запахов
- септик “топас” - Бренд №1
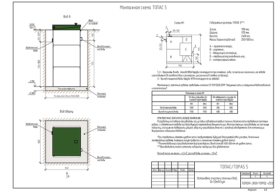
Монтаж септика Топас 5
Монтаж станции Топас 5 и Топас-С 5 необходимо выполнять в соответствии с правилами и рекомендациями производителя. Процесс включает в себя следующие работы:
- Выбор оптимального места на участке.
- Подготовка котлована согласно монтажной схеме.
- Монтаж подводящего трубопровода.
- Установка и фиксация корпуса септика в котловане.
- Обсыпка котлована песком с параллельным заполнением водой.
- Выполнение входного отверстия, установка компрессоров.
- Досыпка котлована до уровня местности.
Установка Топас 5 должна осуществляться квалифицированными специалистами, что обеспечит соблюдение всех правил и норм монтажа, гарантию корректного подключения и бесперебойной работы станции. Специалисты нашей компании имеют необходимую квалификацию и большой опыт работы, что позволит выполнить качественный монтаж под ключ в быстрые сроки по оптимальной стоимости. Мы поможем с выбором оборудования, доставим его на объект, осуществим монтаж и пусконаладку, а также проконсультируем по эксплуатации станции.
Техническое обслуживание
| Периодичность | Перечень работ |
|---|---|
| Раз в неделю | Визуальный контроль работы |
| Раз в 3 месяца |
|
| Раз в год | Прочистка воздушного фильтра компрессора. |
| Раз в 2 года | Замена мембран компрессора. |
| Раз в 5 лет | Очистка донной части приемного резервуара и аэротенка от минерализованного осадка. |
| Раз в 10 лет | Замена аэрационных элементов на аэраторах. |
Варианты водоотведения
В ливневую канаву
В дренажный колодец
В накопительный резервуар
На поле фильтрации или в дренаж
В ливневую канаву через накопительный резервуар
В водоем через блок доочистки Похожие товары
Топас 4
на проживание: 4 человек
переработки: 0.8 м3/сут.
очищенной воды: самотечный
подводящей трубы: 90 м.
Топас 6
на проживание: 6 человек
переработки: 1.15 м3/сут.
очищенной воды: самотечный
подводящей трубы: 90 м.
Комплектующие
1 400 руб.
600 руб.
25 руб.
Выполненные работы
Доставка и установка очистных станций
Володи Ульянова 69/72И, Хоста, Красная Воля, Сочи, Краснодарский край
Доставка и установка очистных станций
г. Серпухов, КП «Заповедный берег»
Доставка и установка очистных станций
Дмитровский г.о, КП Грин парк, д. 376
Topas-septiki.ru

